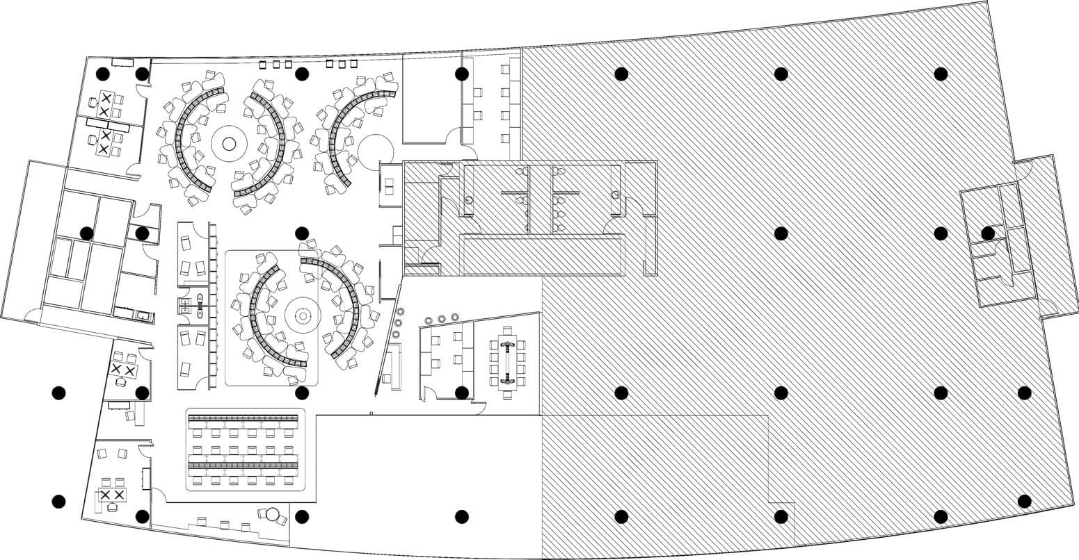
The most awarded advertising agency in the world, Ogilvy, has a new image for its offices in Mexico City proposed by architects from Serrano Monjaraz Arquitectos. The concept of Ogilvy offices relies on the idea of interaction and synchrony between the different departments inside it which will promote teamwork and efficiency in the collaborative processes and information transfer. By using circular geometries, squares and rectangles, architects managed to create an aesthetically expressive office design, turning it into a worspace filled with vivid colors and recycled materials and furniture. The interior needs were solved by creating spaces for private offices and services, glass boxes meeting rooms located on level 5 and 1, telephone booths and a glass amphitheater for campaign presentations. The central area is organized by the vertical circulation, reception and a large main room become the center of the whole floor at level 5, receiving more than 200 people, providing the ability to deliver mass messages to the “Ogilvy community.” The acoustic and lighting problems were given a smart solution: a cellular system plafond combined with the distribution of the exposed system installation.
Photos: © Serrano Monjaraz Arquitectos.
Project details:
Project name: Ogilvy
Category: Office
Location: Lomas de Chapultepec, Mexico City
Area: 2,490 m2
Construction year: 2010-2011
Architectonical project: BIOMAH + SerranoMonjaraz Arquitectos
Direction: Raúl Huitrón + Juan Pablo Serrano
Collaborator: Francisco Llamosa, Joel Callejas, Fernanda Bon, Erika Pacheco
Project Managment: CBRE Richard Ellis México
Construction: ATXK
Lighting: L+F
Acoustic Consultant: Saad Accoustics











